SSQ-3型手動雙梁起重機

點擊放大
產品名稱:SSQ-3型手動雙梁起重機
產品關鍵詞:SSQ-3型手動雙梁起重機
產品描述:
SSQ-3型手動雙梁起重機
詳細說明
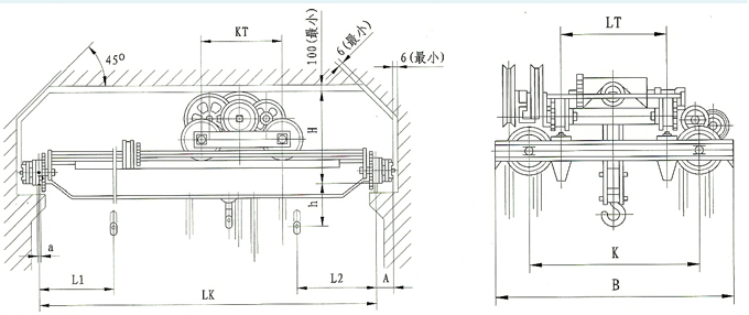
用于搬運量不大且不甚講究效率和速度的無電源倉庫、車間或檢修設備等處。手動雙梁起重機主要有主梁、端梁、主從動車輪、傳動機構、小車等四部分組成。
起重機安裝時必須符合下列條件:
一、軌道接頭允許偏差高低差不得大于1mm,間隙≤2mm。
二、軌距LK≤12m,允許偏差±6mm,軌距LK>12m,允許偏差±i8mm。
三、軌道標高允許偏差為軌道長度的1/1000。
四、軌道彎曲允許偏差為3mm。
手動雙梁起重機上所有的潤滑裝置及傳動軸上的軸承,每半年需注潤滑油(干油)一次。



















